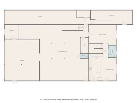
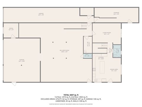
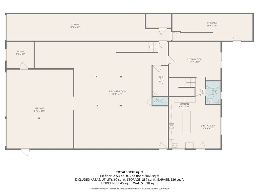
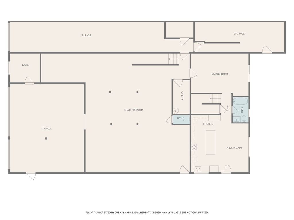
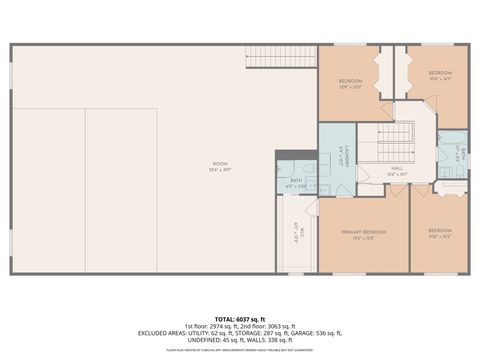
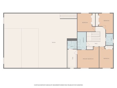
Designed for functionality with scenic surroundings, this custom barndominium is ideal for storage, warehousing, or business operations. It features a 4,700 sq ft commercial-grade shop suited for equipment, inventory, or distribution, plus a 1,700 sq ft living space for on-site management or staff. Set on 4.03 acres, there's ample room for expansion, parking, or outdoor storage. Three separate heat pumps provide targeted climate control for the shop and living areas, complemented by radiant floor heating and a backup wood-burning boiler for added reliability. With dual addresses (62 Katie Ray Lane and 353 Montford Road), the property offers flexibility for deliveries, mixed-use, or multi-tenant use.
Property Type(s):
Commercial
| Year Built | 2016 | County | Flathead |
|---|
Additional Details
| AIR | Central Air |
|---|---|
| AIR CONDITIONING | Yes |
| BASEMENT | None |
| CONSTRUCTION | Metal Siding, Wood Siding |
| HEAT | Heat Pump, Radiant Floor |
| INTERIOR | LivingArea, PrivateRestrooms |
| LOT | 4.03 acre(s) |
| LOT DESCRIPTION | Agricultural, Back Yard, Level, Pasture, Views |
| LOT DIMENSIONS | 4.03 |
| SEWER | Private Sewer, Septic Tank |
| TAXES | 2961 |
| UTILITIES | Electricity Connected |
| VIEW | Yes |
| VIEW DESCRIPTION | Park/Greenbelt, Meadow, Mountain(s) |
| WATER | Private, Well |
Contact us about this Property
| / | |
| We respect your online privacy and will never spam you. By submitting this form with your telephone number you are consenting for Brian Murphy to contact you even if your name is on a Federal or State "Do not call List". | |
Listing provided by: Lianna Khoma, Keller Williams Realty Northwest Montana | 62 Katie Ray Lane
IDX information provided courtesy of the Montana Regional MLS, LLC. IDX information is provided exclusively for consumers' personal, non-commercial use, and it may not be used for any purpose other than to identify prospective properties consumers may be interested in purchasing. The data is deemed reliable but is not guaranteed accurate by the MLS.
This IDX solution is (c) Diverse Solutions 2026.



