|
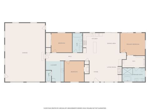
Welcome to your dream home in the scenic Potomac Valley"”where thoughtful craftsmanship meets modern comfort. This beautifully built, single-level residence offers 1,800 square feet of well-designed living space sitting on 3.11 forested acres and a private setting, featuring 3 spacious bedrooms and 2 1/4 baths. The home includes a luxurious primary shower. The home is both stylish and highly functional. Inside, you'll find special touches that set this property apart, including striking shiplap ceilings and upgraded appliances that elevate the kitchen experience. The open layout is complemented by a cozy fireplace, efficient propane forced air heating, central A/C, and an on-demand hot water system for year-round comfort and convenience. The oversized 30x40 garage provides ample room for vehicles, storage, or a workshop. Step outside to enjoy durable TimberTech decking"”perfect for relaxing or entertaining while taking in the peaceful surroundings of your 3.11-acre property. Additional features include rain gutters, private well, and private septic system, offering self-sufficiency and ease of living. This exceptional property combines quality construction, modern amenities, and the tranquility of rural living"”don't miss your chance to make it yours. Please note furnishings are not included in the sale. Listing agent is related to the seller.
Property Type(s):
Single Family
| Year Built | 2026 | Garage Spaces | 2.0 |
|---|---|---|---|
| County | Missoula |
Additional Details
| AIR | Central Air |
|---|---|
| AIR CONDITIONING | Yes |
| APPLIANCES | Dishwasher, Dryer, Microwave, Range, Refrigerator, Washer |
| BASEMENT | Concrete, Crawl Space, Yes |
| CONSTRUCTION | Batts Insulation, Blown-In Insulation, Wood Siding |
| FIREPLACE | Yes |
| GARAGE | Attached Garage, Yes |
| HEAT | Forced Air, Propane |
| INTERIOR | Open Floorplan, Vaulted Ceiling(s), Walk-In Closet(s) |
| LOT | 3.11 acre(s) |
| LOT DESCRIPTION | Level |
| LOT DIMENSIONS | 3.11 |
| PARKING | Garage, Garage Door Opener, RV Access/Parking, Attached |
| SEWER | Private Sewer, Septic Tank |
| STORIES | 1 |
| STYLE | Ranch |
| TAXES | 649.83 |
| UTILITIES | Electricity Connected, Propane, Underground Utilities |
| WATER | Private, Well |
Contact us about this Property
| / | |
| We respect your online privacy and will never spam you. By submitting this form with your telephone number you are consenting for Brian Murphy to contact you even if your name is on a Federal or State "Do not call List". | |
Listing provided by: Roderick Leese, Western Brokers | 3219 Bear Creek Road
IDX information provided courtesy of the Montana Regional MLS, LLC. IDX information is provided exclusively for consumers' personal, non-commercial use, and it may not be used for any purpose other than to identify prospective properties consumers may be interested in purchasing. The data is deemed reliable but is not guaranteed accurate by the MLS.
This IDX solution is (c) Diverse Solutions 2026.



